Корзина 0
Список сравнения 0 Список желаний 0
Личный кабинет
Меню
Наш адрес: Московская область, Ленинский район, деревня Апаринки, с.1Д, 2-й склад, офис 12
Московская область, Ленинский район, деревня Апаринки, с.1Д, 2-й склад, офис 12
Пн-Чт: 09.00 - 18.00
Пт: до 17.00
Сб, Вс: Выходной

info@lestniza.ru
г. Санкт-Петербург , ул. Минеральная д.31, лит.В офис 28
Телефоны: 8 (812) 407-15-19
Пн-Чт: 09.00 - 18.00
Пт: до 17.00
Сб, Вс: Выходной
8 (495) 225-45-19 8 (800) 555-1-787 Заказать звонок

Универсальная деревянная лестница ЛЕС-06 на металлическом каркасе (поворот 180 градусов)

Акция
Производители Лесенка
Код Товара: ЛЕС-06
Отзывы: (0)
Доставка 2 недели
102 430р.
-5%
97 309р.
Характеристики: (смотреть все)
Высота лестницы. м
до 280 см
Вес. кг
290
Производитель
Лесенка Россия
Тип
Межэтажная
Страна производитель
Россия

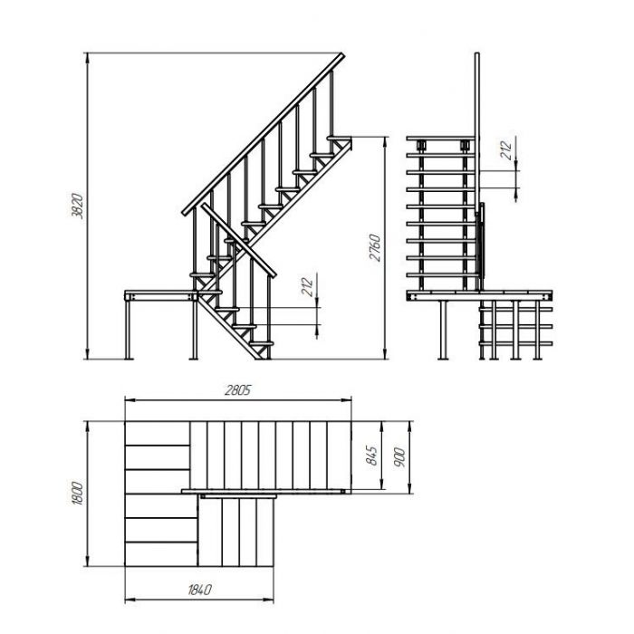
Универсальная лестница ЛЕС-06 на металлическом каркасе с большой поворотной площадкой на 180 градусов. Идеально дополнит любой интерьер, имеет современный вид и удобна в использовании.

Высота шага 212 мм

Глубина 1800 мм

Грузоподъемность до 180 кг

Материал: сосна

Характеристики:

модификация левозаходная и правозаходная (универсальная)
поворот 180°
габаритные размеры 2805x1800x3820 мм
высота подъёма от уровня пола нижнего этажа до уровня пола верхнего этажа  2760 мм
угол подъёма по краю ступени относительно пола 45°
число ступеней:
до промежуточной площадки 4 шт
до уровня пола верхнего этажа 9 шт
размер промежуточной площадки (со ступенью) 1,8 х 0,9 м
толщина ступеней 40 мм
высота шага ступеней 212 мм

Промежуточная площадка, при необходимости, может крепиться к стене 4-мя анкер. болтами с 3-х сторон или просто устанавливаться на 4-х опорах из профильной трубы 40х60 L-770 мм.
Струны под ступени изготовлены из профильной трубы 40х60 и трубы 20х20 с перемычкой из листа S-3, к которой крепится ступень.

Используемый материал - древесина шлифованная , не окрашенная и металл покрытый порошковой краской.
Деревянная лестница поставляется в разобранном виде в двух коробках
2900х600x370 мм и собирается на объекте монтажа по указаниям приведённым в паспорте на лестницу.

Вес с упаковкой - 290 кг

Транспортные размеры:

1 коробка  900 500 400 мм.

2 коробка 3000 500 400 мм.

Скачать паспорт лестницы ЛЕС-06


Характеристики
Высота лестницы. м
до 280 см
Вес. кг
290
Производитель
Лесенка Россия
Тип
Межэтажная
Страна производитель
Россия
Товар
Лестница
Отзывы
0/ 5
средний рейтинг товара
0
0
0
0
0
Нет отзывов о данном товаре. Станьте первым, оставьте свой отзыв.

Нет вопросов о данном товаре, станьте первым и задайте свой вопрос.

Мы доставляем заказы по г. Москве и Московской области, также отправляем Транспортными компаниями по всей территории России.

Сроки доставки заказа зависят от наличия товаров на складе. Если в момент оформления заказа все выбранные товары есть в наличии, то мы доставим заказ в течение 1 – 2 дней в Московском регионе, а также до терминала Транспортной компании в г. Москва. Если заказываемый товар отсутствует на складе, то максимальный срок доставки заказа может составить до 4 недель. Но мы стараемся доставлять заказы клиентам как можно быстрее, и 90% заказов клиентов отправляются в течение первых 2 недель. 

Способы оплаты для Московского региона:

  • Оплата при получении
  • Онлайн-оплата картой
  • Оплата по СБП (системе быстрых платежей)
  • Безналичный расчет

Способы оплаты для других регионов России:

  • Онлайн-оплата картой на сайте
  • Оплата по СБП (системе быстрых платежей)
  • Безналичный расчет


Новинки
Новинки
Акция
Стальная стремянка Sarayli 4_уценка
0
в наличии
Код товара: Sarayli 4_уценка
1 799р.
-34%
1 190р.
Новинки
Акция
Стремянка алюминиевая Calipso 5 широких ступеней белая_уценка22
0
в наличии
Код товара: Calipso-5 silver_уценка22
10 924р.
-10%
9 832р.
Новинки
Акция
Стремянка алюминиевая Calipso 5 широких ступеней белая_уценка21
0
в наличии
Код товара: Calipso-5 silver_уценка21
10 924р.
-10%
9 832р.
Новинки
Акция
3-х секционная лестница Krause Tribilo 3x6 129642_уценка
0
в наличии
Код товара: 129642_уценка
16 420р.
-39%
10 000р.
Новинки
Двухсторонняя алюминиевая стремянка Эйфель Библио 130 Вариант 208 с крюком
0
в наличии
Код товара: Библио 130 Вариант 208
19 310р.
Клиентский сервис Поддержка клиентов по телефону 12 часов 7 дней в неделю
Скидки Скидки за покупке за наличный расчет
Гарантия качества Гарантия на товары от 1 года и более
Доступные цены Лучшие цены на рынке благодаря прямым поставкам
Лидеры продаж
Хит продаж
Пластиковая заглушка передней ножки стремянки 40х20 мм.
0
в наличии
Код товара: Заглушка 40х20 мм.
81р.
Хит продаж
Акция
Стремянка-табурет SevenBerg Mini, сталь, 2 ступени, рабочая высота 244 см
5
в наличии
Код товара: 9901-02
2 650р.
-21%
2 100р.
Хит продаж
Пластиковая заглушка задней ножки стремянки 30х20 мм. Заглушка 30х20 мм.
1
в наличии
Код товара: Заглушка 30х20 мм.
61р.
Хит продаж
Акция
Стремянка SevenBerg Prima Lux черная 3 широкие ступени
3
в наличии
Код товара: Prima Lux черная 3 ступени
4 330р.
-10%
3 897р.
Хит продаж
Стремянка Colombo "Leonardo" 3 ступени G300A03W черного цвета
1
102 430р. 97 309р.